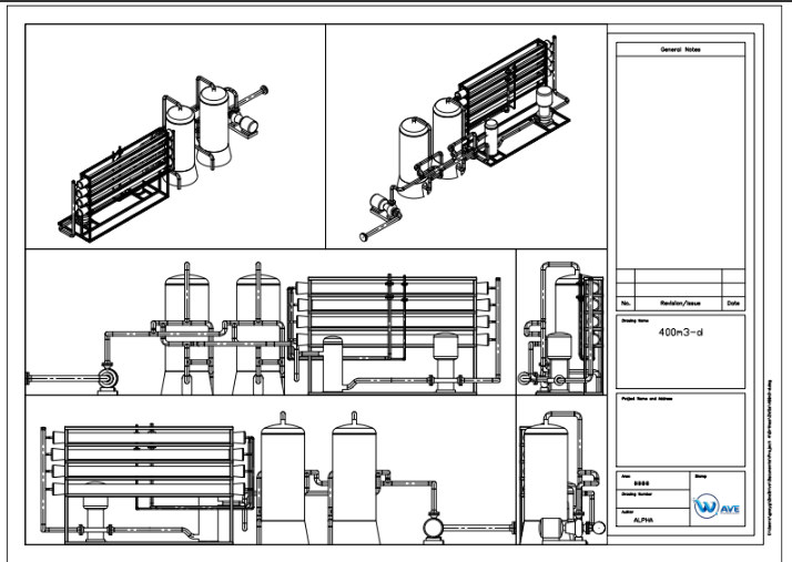
Professional 3D Design & Modeling for Water and Wastewater Treatment Plants &Desalination Plants
We provide comprehensive 3D design, modeling, and drafting services for all types of water treatment, desalination, and wastewater treatment plants. Our team specializes in creating accurate, fully detailed 3D models and technical drawings that cover every aspect of plant design—from civil and structural components to mechanical and electrical systems. By combining advanced software tools with engineering expertise, we ensure optimized layouts, efficient operations, and clear visualizations that support project planning, construction, and operation. Whether it’s a new installation, expansion, or retrofitting existing facilities, our service delivers precise, reliable, and professional design solutions tailored to your project requirements.
Category: design
You May Also Like
Cartridge filters are easily produced modular filters that are placed into housings and work in eliminating particles, or in lesser instances chemicals from water.
The use of reverse osmosis membranes in the water treatment industry is standardized practice, due to the requirement of filtration to take place in removing unwanted impurities from water.
first-rate brackish water treatment solutions in a variety of industrial/commercial applications and industries. Our water purification company delivers brackish water reverse osmosis systems
We offer professional 3D design, modeling, and drafting services for all types of water, desalination, and wastewater treatment plants, ensuring accurate, optimized,
deliver safe, high-quality drinking water by effectively removing suspended solids, pathogens, dissolved salts, and other harmful contaminants. T
modular water storage tanks provide durable, corrosion-resistant solutions for storing raw or treated water in desalination and water treatment plants.from 500 L to 500,000 L
Chemical Wastewater Treatment Plants are specifically designed to manage and provide and treat wastewater generated from chemical manufacturing and processing industries
industrial Wastewater Treatment Plants using Dissolved Air Flotation (DAF) efficiently remove oils, greases, and suspended solids from industrial effluents. Designed for various industries, these plants ensure compliance with environmental regulations
Our stainless steel desalination plants provide reliable, high-quality freshwater for industrial applications. With capacities from 3 to 1000 m³/day, they offer modular, corrosion-resistant solutions for diverse industrial water needs. Energy-efficient
desalination systems feature a wide range of capacities and modular designs, offering flexible and efficient solutions tailored to diverse water sources and project requirements.







