What we develop?
Engineering & Technical Drawings
Professional drawings that translate concepts into executable engineering solutions.
Our company provides state-of-the-art, multi-stage treatment plants specifically engineered to handle the complex challenges
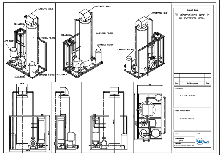
The Advanced Integrated RO System is a fully skid-mounted reverse osmosis unit engineered to deliver high-purity water with maximum operational efficiency.
The unit is a complete water treatment skid consisting of a multimedia filtration unit, followed by a water softener, and finalized with cartridge filters for
The High-Capacity RO System Skid is the core unit of any integrated water treatment plant, engineered to deliver high-purity water through a compact
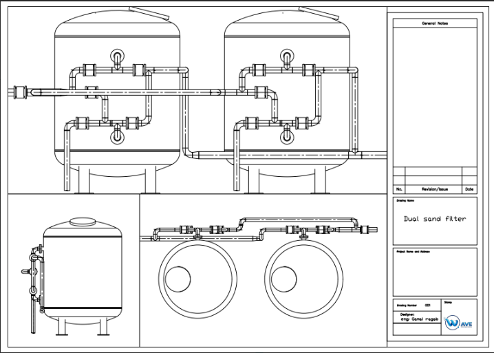
Sand Filter System is a high-efficiency water treatment solution designed to remove turbidity and suspended solids
an engineered solution designed to achieve optimal solid–liquid separation in water and wastewater treatment processes
Advanced Dual-Unit Filtration for Heavy-Duty Applications- is a high-performance dual filtration solution engineered
Smart, Integrated Solution for Water Filtration & Disinfection Upgrade your water quality standards with our COMPACT FILTRATION System
CITY RO-PLANT Stations: High-Performance in a Smart Design. Our stations are designed to meet your needs for purified water
No products found

